Siège communautaire < 2009
Etude 3D d'ensemble
Coupe de principe
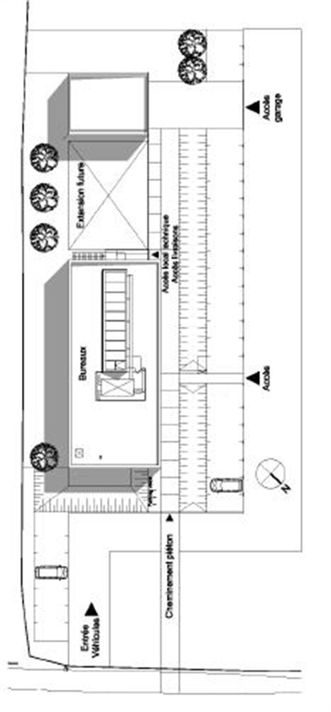
Plan de masse
Vue d'ensemble
Hall
Circulation
Hall
vue d'ensemble
Vue d'ensemble
Salle de réunion
CREDITS - Voir les mentions légales
©MA/Murail Architectures (photographies : MA , M.A. , )
©MA/Murail Architectures (photographies : MA , M.A. , )